- Details
Liebe Mitglieder*innen der Freien Wählergruppe Weitersburg,
wir werden die Mitgliedsbeiträge für das Jahr 2021, Anfang April 2021 per SEPA Lastschrift einziehen.
Vielen Dank für Eure Unterstützung! Bleibt gesund!
Viele Grüße Michaela Lauterberg Kassiererin
- Details
Einsehbar auf der Internetseite der Ortsgemeinde

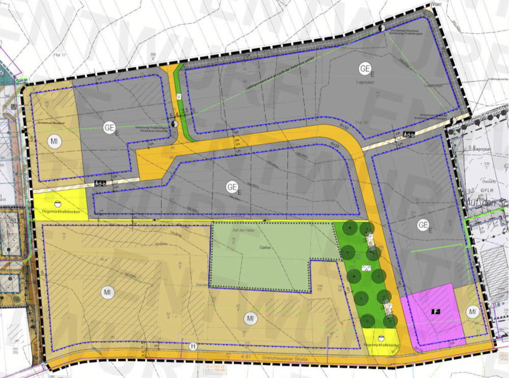
Der Sachstand des Vorentwurfs zum Bebauungsplan zwischen den Straßen “Am Römergrund” und “Auf den Schafmorgen”, der bereits am 14.01.2021 in den Ausschusssitzungen vorgestellt werden sollte, ist seit Februar auf der Internetseite der Ortsgemeinde, mit Kurzerläuterungen, einsehbar (-hier klicken-). Die FWG-Fraktion hatte aus verschiedenen städtebaulichen Gründen zu diesem Thema bereits im Oktober 2015 einen Entwicklungsantrag gestellt (-hier klicken-) und diesen im Jahr 2019 konkretisiert (-hier klicken-).
Weiterlesen: Vorentwurf - Bebauungsplan zwischen Römergrund und Schafmorgen
- Details
Die Freie Wählergruppe Weitersburg e.V. (FWG) spendete drei Obstbäume zur Aufstockung der vorhandenen Streuobstbaumbestände

Trotz Sturmböen und Regen trafen sich Mitglieder der Fraktion am Samstag, den 13. März zur Pflanzaktion.
“Die diesjährige Pflanzaktion ist zum einen aus dem Gedanken heraus entstanden, den Grünen Gürtel rund um Weitersburg weiter aufzuforsten. Zum anderen konnte in diesem Jahr Corona bedingt kein Neujahrsempfang stattfinden. Das Geld haben wir in die Pflanzen investiert.”, erklärt Michaela Lauterberg.
“Bedanken möchten wir uns bei den Streuobst Freunden Weitersburg sowie deren Helfer – ohne die eine solche Maßnahme kaum möglich wäre.”, so Lauterberg weiter. Die Streuobst Freunde pflegen und erhalten die Bäume über das Jahr hinweg.
- Details
Freie Wähler ab jetzt im Landtag vertreten
Am Sonntag, den 14. März 2021, war die 18. Landtagswahl von Rheinland-Pfalz. Den Freien Wählern ist es gelungenen erstmalig in den rheinland-pfälzischen Landtag einzuziehen!
Die Freien Wähler stehen für solide Staatsfinanzen, Verlässlichkeit und Transparenz in der Politik. Die FREIEN WÄHLER sind unabhängig und wertkonservativ.
Sie setzen sich nachdrücklich für den Erhalt gewachsener lokaler, regionaler und überregionaler Traditionen ein. Sie sind zugleich auch bürgerlich-liberal, denn sie treten für die Sicherung der Bürgerrechte und damit der Freiheit des Einzelnen ein. Sie wollen Bewährtes erhalten und mit den Anforderungen der modernen Gesellschaft in einer globalisierten Welt in Einklang bringen.
Die Politik der FREIEN WÄHLER stellt den Menschen und sein Wohl in den Mittelpunkt.
Durch starke kommunale Verwurzelung, z.B auch in den befreundeten unabhängigen Freien Wählergruppen, können sie ihre über Jahre gesammelten Erfahrungen aus Rathäusern und Kommunalparlamenten in die Landtage und den Bundestag einbringen.


Mit der Landtagswahl 2021 haben die Freien Wähler nun Sitze im Landtag und wir, als Freie Wählergruppe Weitersburg, freuen uns nun direkte Ansprechpartner im Landtag zu haben!
In Weitersburg konnten die FREIEN WÄHLER in den Landesstimmen 7,8% holen und damit den zweithöchsten Zuwachs von PLUS 3,2%-Punkten mehr als zur Landtagswahl 2016 gewinnen.
In der Wahlkreisstimme kletterten die FREIEN WÄHLER auf stolze 12,8% mit ebenfalls dem zweithöchsten Zugewinn von PLUS 2,3%-Punkten.****
- Baumschutzsatzung für Weitersburg - leider - abgelehnt
- Mobile Lüftungsgeräte für Klassenräume der Peter-Friedhofen Schule
- Jahresabschluss und Rechnungsprüfung 2019
- Eingeschränktes Gewerbegebiet West
- Woher bekommt die Gemeinde ihr Geld?
- Demokratie lebt von Verantwortungsbereitschaft und braucht Initiative